Historic square Development
Minoritské náměstí je historicky i urbanisticky významným územím při Minoritském klášteru v nejstarší části centra Jihlavy. V současnosti však je urbanisticky nedokončené a jeho měřítko i funkce poškozené, což bylo z velké části způsobeno asanacemi v 60. letech. Náměstí dnes působí dojmem spíše neurčené plochy zeleně, místo nedisponuje žádným kulturním či komerčním zázemím a některé okolní domy se do náměstí dokonce obrací svými zadními fasádami. Velká část zástavby chybí, což je v protikladu s minulostí, kdy řešené území již od založení města ve 13. století bývalo zastavěno. Návrh zástavby a dotvoření náměstí se snaží při respektování místních historických proporcí výše zmíněné problémy řešit a vnést do nyní pozapomenutého území nový život a impuls a znovu ho propojit s aktivní částí města.

Navržené řešení ideově navazuje na gotický urbanismus, ale zastavuje ho současnou formou. Urbanistickým doplněním lokality dosáhneme toho, že zastavba do územi organicky zapadne, současným tvarováním hmoty pak toho, aby se jednalo o jednoznačně současnou architekturu, nikoliv nápodobu minulosti. Původní středověký urbanismus znal široké spektrum prostorů na škále veřejný-soukromý, od devatenáctého století tato prostorová bohatost však postupně ubývala až se rozdělila na dva protiklady: prostor veřejný nebo prostor soukromý. Tato středověkou bohatost byla výchozí myšlenkový bod naší koncepce. Zástavbou definujeme veřejný prostor v lokalitě: Minoritské náměstí a přilehlé ulice. Umožňuje ale také vstoupit do útrob zástavby - vnitrobloků, kde měřítko prozrazuje soukromější avšak né zcela privátní charakter.

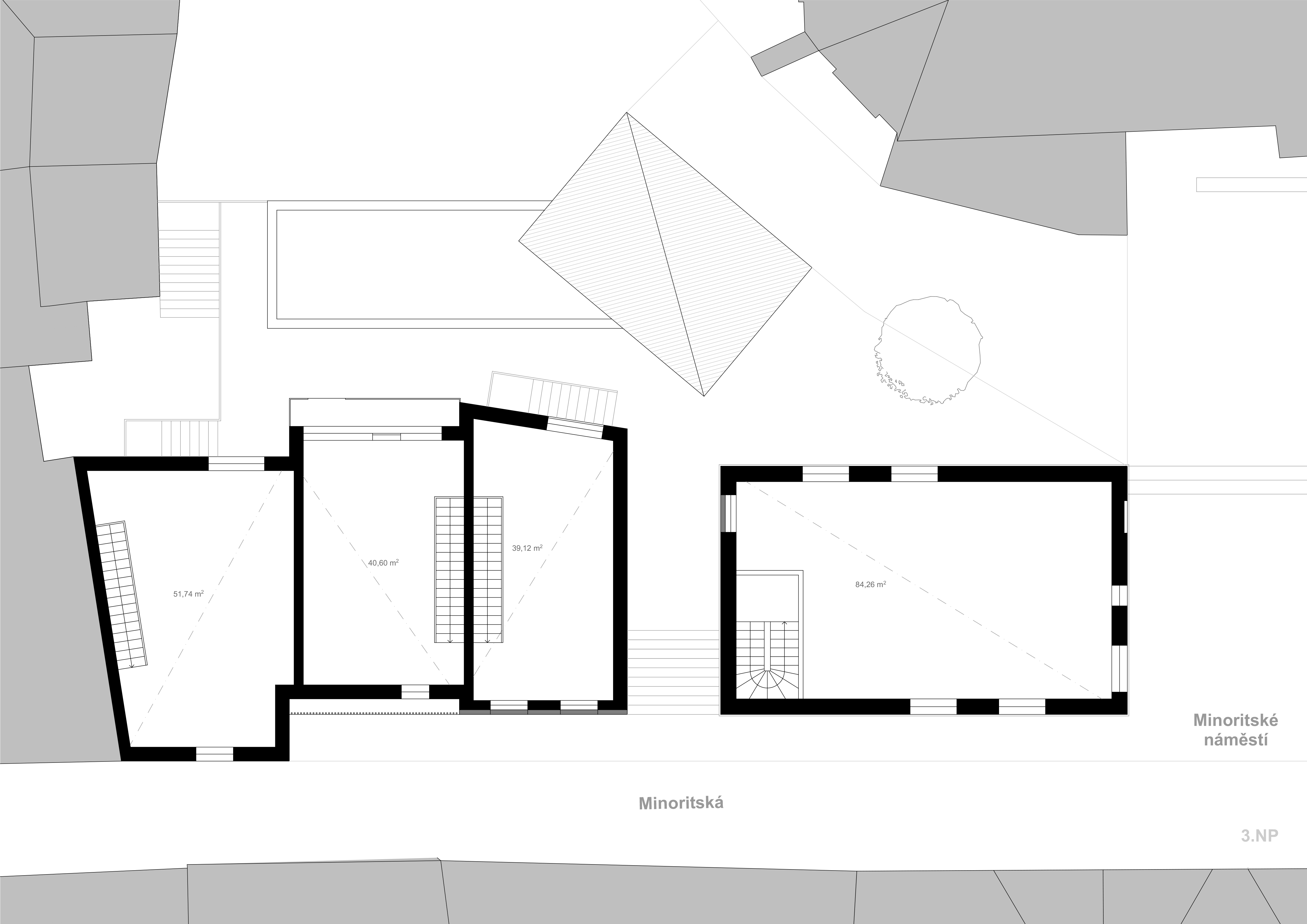
Hmotově je soubor rozdělen do 5 objektů, což hmotově odpovídá měřítku historické zástavby. Architektura přejímá některé historické výrazové prvky (sedlové střechy, římsy), ale interpretuje je v současném světle. Řešení sedlových střech umožnuje lepší proslunění protilehlých domů v Minoritské ulici. Ze stejných důvodů odstupuje část zástavby od původní uliční čáry o 1,5 metru. Pro pocitově i pohledově větší odstup od okolní zástavby jsou fasády do Minoritské ulice řešeny jako jakýsi filtr - omězující výhled další vrstvou - zelení, kladením cihel nebo průsvitnými materiály.

Provozně domy fungují jako samostatné townhousy. V objektech č. 2 až 4 tvoří přízemí obchodní plochy, v patrech se nacházezí vždy jeden mezonetový byt. Hlavní objektu č. 1 situován do náměstí nabízí v přízemí kulturní či komerční plochu, ideálně se vzhledem k pozici nabízí např. kavárna. V patrech jsou situovány dva samostatné byty. Objekt č. 5 skýtá multifunkční prostor (byt či komerční plochu) a částečně společné zázemí (společenská/party místnost, dílna, kůlna) pro všechny byty, případně lze prostor použít i jako samostatnou garsonku či ateliér.

Střechy jsou tvarovány tak, aby světlo proudilo déle do protilehlých oken sousedních budov. Tvar střech soudobě interpretuje různé historické i současné principy orientace střech a domovních štítů, které se v průběhu času měnily. Dominantnímu sousedovi - kostelu/klášteru se návrh snaží respektovat a hmotově mu nekonkurovat. Naopak do náměstí, kde nato je prostor a důvod (reprezentační fasáda dotvářející náměstí), se hmota zvyšuje. Ostatně i historicky zástavba v těchto místech byla taková: Vyšší hmoty do náměstí a Minoritské, nižší pak (různé dílny a přístavby viz historické fotografie) do zadní uličky podél kostela.







